Het vakantiehuis ligt op een terrein van 1000m² en heeft een verwarmd privé-zwembad(4x8m).
Het vakantiehuis is verdeeld in 2 gîtes (appartementen) van 80 m² groot.
Beide gîtes bieden elk plaats bieden aan max. 6 pers. De gîtes kunnen apart of samen (voor max. 12 pers.) gehuurd worden. Iedere gîte heeft een TV met satellietaansluiting (TV-Vlaanderen)! Iedere gîte is volledig afgesloten van de andere en beschikt over een overdekt terras dat door middel van een mobiel tussenschot is afgesloten van de naburige gîte. Er is dus mogelijkheid om een gemeenschappelijk terras te creëren. Er is Wifi op het terrein aanwezig.
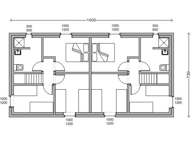
Indeling van een gîte :
Gelijkvloers:
– keuken: inductiekookplaat, combi microgolfoven, afwasmachine, ijskast met diepvriezer
– woonkamer
– badkamer: douche, toilet, lavabo
– overdekt terras met barbecue en tuinmeubilair
1e verdieping:
– slaapkamer 1: 1x 2 pers.bed (160x200cm)
– slaapkamer 2: 2x 1 pers.bed (90X200cm) – slaapkamer 3: stapelbed (90x200cm) – WC en lavabo
In de tuin die gemeenschappelijk is voor de 2 gîtes vinden we het verwarmd zwembad (8x4m), het poolhouse, de speeltuin met glijbaan, schommels en de maxi-trampoline.
Het zwembad van Villa Vallon II is omheind en afgesloten dmv 2 poortjes.
Er is een gemeenschappelijke wasmachine.

